Деревообробне в Rovno Ровно
Продается деревообрабатывающее предприятие, цена 236 000.00 USD.
В продажную цену входит недвижимость, производственное оборудование, автотранспорт, оргтехника и мебель.
Предприятие находится в Украине, в Ровенской области, в городе Сарны с населением около 45000 жителей. Город расположен недалеко от автомагистрали Киев – Варшава, есть таможенный пункт и железнодорожная станция, в т.ч. и грузовая.
Виды деятельности предприятия:
- первичная переработка леса кругляка и производство тарных пиломатериалов;
- предоставление услуг по перевозке грузов;
- изготовление древесных опилок и щепы;
Проектная мощность предприятия составляет 10500 м3 пиломатериалов и 10000 м3 древесных опилок и щепы в год.
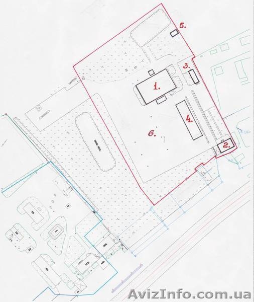
Земельный участок площадью 3, 3 гектаров, в том числе асфальтовое покрытие - 2, 3 гектара, арендован у местного самоуправления на срок до 2016 года. Нет препятствий для приобретения земли в собственность от самоуправления. На участке расположены 4 (четыре) здания и вспомогательные постройки. Объект в рабочем состоянии и полностью обеспечен инженерными коммуникациями.
1. производственный корпус площадью 1700 м²;
2. административное здание площадью 334 м²;
3. здание котельной 96, 70 м²;
4. навес для хранения готовой продукции 800 м²;
5. трансформаторная подстанция мощностью 960 кВт;
6. асфальтовое покрытие - 2, 3 гектара
Інформація про компанію, яка розмістила оголошення:
Дії з оголошенням #773663
Поділіться з друзями і знайомими
Поділіться оголошенням Деревообработка з друзями, знайомими, потенційними клієнтами, використовуйте для цього соціальні мережі, месенджери. Це додасть оголошенню популярності і ефект багаторазово підвищиться.
Збережіть або повідомте про порушення
Ковалдин Арманд
- На сайті з: 16.10.2012
- Активність: 16.10.2012
Поради з безпеки
- Познайомтеся з продавцем в публічному місці
- Перевірте товар перед покупкою
- Сплачуйте лише після того як переконаєтеся, що товар відповідає опису і вашим вимогам
- Бажано провести операцію при свідках
Інші оголошення від
Ковалдин Арманд
QR-код сторінки
Поділіться QR-кодом в соціальних мережах, чатах, месенджерах щоб ваші знайомі, потенційні клієнти відкрили ваше оголошення на своїх смартфонах.
Казахстан
Україна
Узбекистан
Молдова